Thera land.jpg
Thera_complex_Panorama.jpg
Thera_complex_1.jpg
Thera_complex_2.jpg
Masterplan_web.jpg
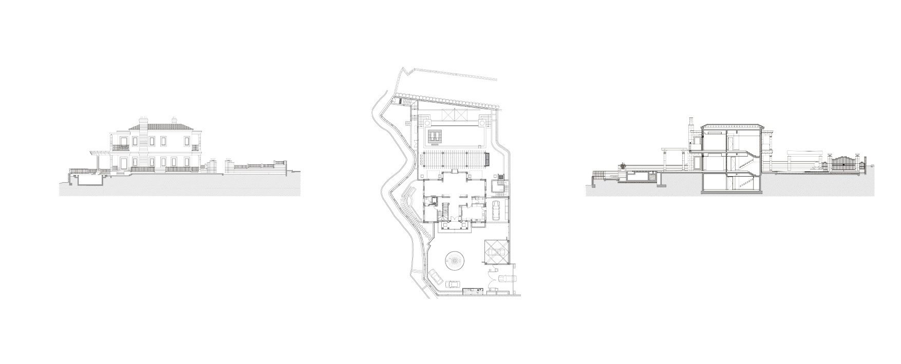
plans_web_1.jpg
plans_web_2.jpg
plans_web.jpg